今回は、利便性と落ち着いた住環境が共存する街「豊島区東池袋2丁目」に位置する築40年中古マンションのリノベーションをレポートしていきます。

目次
1.地域情報
・東池袋 名前の由来
「東池袋」は文字通り「池袋」の東に位置することを意味しますが、「池袋」の由来には諸説あります。池が点在する盆地状の地形説や、現在の元池袋史跡公園付近にあった「袋池」にちなむ説が有力です。

今昔マップon the webより作成
・地域の歴史
江戸時代、東池袋周辺は「中西の森」と呼ばれる旗本の拝領地で、明治時代には実業家・根津嘉一郎が取得し「根津山」と命名されていました。1895年から昭和後期まで刑事施設として使用された後、1971年に再開発され、「サンシャインシティ」として商業・文化の拠点に生まれ変わりました。

・鉄道の歴史
池袋周辺の鉄道は、東京の発展とともに大きく変化してきました。
1903年に池袋駅が開業し、西武鉄道が東口に、東武鉄道が西口に乗り入れたことで「東が西武、西が東武」と呼ばれる独特な構造になりました。
1974年には有楽町線が開通し東池袋駅が誕生。現在ではJR・私鉄・地下鉄あわせて8路線が集まる一大ターミナルへと成長しました。
-1024x369.jpg)
1911年開業の都電荒川線は、今も残る都内唯一の路面電車。高度経済成長期に多くの都電が廃止される中、地域の声に支えられ1974年に現在のルート(三ノ輪橋〜早稲田)が残されました。
「東京さくらトラム」の愛称で親しまれ、下町の風景や季節の街並みが楽しめます。

また、大塚駅はJR山手線と都電荒川線が利用でき、新宿・東京など主要駅へも乗り換えなし。通勤・通学にも便利なアクセス拠点です。
■「大塚駅」からJR山手線で「池袋駅」まで約3分
■「大塚駅」からJR山手線で「新宿駅」まで約11分
■「大塚駅」からJR山手線で「東京駅」まで約21分
・これからの豊島区
東池袋一丁目地区第一種市街地再開発事業
東池袋一丁目地区では、地上31階・地下4階の複合高層ビルを建設する再開発プロジェクトが進行中です。老朽化した建物が多い池袋駅北東エリアを対象に、2028年竣工予定で、文化施設や防災機能、イケバス拠点などを整備し、「国際アート・カルチャー都市」の実現を目指します。

豊島区HPより:https://www.city.toshima.lg.jp/300/2110070909.html
また、池袋駅東口から再開発エリアへ続く約500mの遊歩道「みどりのプロムナード」や、周辺に「みどりの丘」も整備され、憩いと回遊の空間が生まれます。

住友不動産HPより:
https://www.sumitomo-rd.co.jp/uploads/20220726_release_higashiikebukuroicchoume.pdf
池袋六ツ又交差点改良工事
分かりにくい交差点形状による事故の多発から、「日本一危険な交差点」とも言われる池袋六ツ又陸橋では、安全性向上のための改良工事が進行中。五差路化や横断歩道の再配置を含む工事は2025年度に着工予定です。
隣接する東池袋一丁目地区では、2028年竣工予定の大規模再開発も進行しており、池袋東口の街並みや人の流れが大きく変わる見込みです。

・周辺施設
サンシャインシティ
池袋駅周辺に位置するこの複合施設は、ショップや飲食店、エンタメ施設が集まり、常に多くの人で賑わう人気スポットです。水族館やプラネタリウム、展望台、博物館などが充実し、年間を通じて多彩なイベントも開催され、家族やグループでの訪問にも最適です。

豊島区立中池袋公園
アニメやコスプレ関連のイベントが多く開催されるほか、園内にはアニメイトのカフェも併設している公園。広々とした石張りの広場や無料Wi-Fiも整備されており、劇場都市・池袋ならではの文化と憩いが融合したスポットとして親しまれています。
天祖神社
鎌倉時代創建の長い歴史を持ち、明治期に「天祖神社」と改称されて以来、巣鴨・大塚地域の鎮守として親しまれてきました。大塚駅から徒歩圏内というアクセスの良さもあり、東京観光の一環で訪れる人や、地域の歴史や文化に触れたい人々に人気のスポットです。

2.物件情報
・立地
徒歩10分圏内に3駅3路線があり、最も近いJR大塚駅前では、都電荒川線が駅前を走る珍しい景観が楽しめます。都市の喧騒の中にレトロな雰囲気が漂う独特の空気が魅力です。

物件へ向かう道中には「サンモール大塚商店街」が広がり、豊富な店舗が日々の暮らしをしっかりと支えてくれます。

さらに、「サンシャインシティ」へは徒歩わずか4分という抜群のアクセス。ショッピングやレジャーも気軽に楽しめ、池袋の巨大商業エリアもすぐ近く。利便性と快適性を兼ね備えた、理想的なロケーションです。
・物件の特徴
ブラウンタイル張りの落ち着いた外観が特徴で、総戸数169戸の大規模マンションならではの存在感を放っています。築1985年ですが、過去に大規模修繕工事は数回実施され、古さは感じない建物です。
ワンルームから4LDK+Sまで多彩な間取りを揃え、シングルからファミリーまで幅広い層に対応しており、さまざまなライフスタイルの人々が暮らしています。
.jpg)
エントランスにはイスとテーブル、自動販売機が設置されており、住人のちょっとした交流の場として活用されています。
-1024x301.jpg)
監視カメラも各階にあり、管理人さんが常駐しているので安心です。
屋根付きの駐輪場が複数箇所に設けられており、整然と整備されています。
また、2025年現在は大規模修繕工事が実施されており、さらなる住環境の向上が期待されます。
-1024x299.jpg)
・物件概要
所在地:東京都豊島区東池袋2丁目
交通:IR山手線「大塚」駅徒歩8分/都電荒川線「向原」駅徒歩4分
構造:鉄骨鉄筋・鉄筋コンクリート造陸屋根11階建
総戸数:169戸
専有面積:65.46㎡
築年月:1985年3月
・間取り図< Before>
.png)
・室内写真<Before>
-1024x329.jpg)
-1024x332.jpg)
-1024x328.jpg)
.jpg)
3.プランニング(8月4日更新)
・コンセプト
「子どもと一緒に成長できる、都市のファミリーライフを楽しむ空間」
文京区の学校エリアへ自転車でアクセスできる立地に、コストパフォーマンスに優れた大規模マンション。
共働きの子育て世帯を想定し、リビングを中心にすべての部屋がつながる間取り設計や、家事動線・収納にも配慮した空間づくりを行います。
教育・通勤・生活のバランスを大切にした、30〜40代ファミリーのための住まいです。
・リノベーション担当者の声と施工工事
POINT 1. 家族が自然に集まる、リビング中心の動線設計
POINT 2. 生活の質を高める、計算された収納スペース
POINT 3. 暮らしの変化に寄り添う、長く安心できる住まい設計
POINT 1. 家族が自然に集まる、リビング中心の動線設計
「家族が自然と顔を合わせ、つながれる空間づくり」を意識しました。そこで、すべての居室をリビングからアクセスできるような動線にします。
リビングを住まいの中心に配置し、それぞれが自分の部屋に戻るときも必ずリビングを通る設計なので、家族の会話が自然に生まれやすくなります。

加えて、オープンキッチンを採用することで、調理中でも家族とコミュニケーションが取れます。料理をしながら子どもの様子を見守れるのは、子育て世帯にとって大きな安心材料です。

今回使用するキッチンのイメージ
POINT 2. 生活の質を高める、計算された収納スペース
限られた空間を最大限に活かすには、「見せない収納」が鍵になります。
2つの洋室には、ゆとりあるウォークインクローゼットを用意し、多くの衣類をまとめて収納できます。リビングには日用品を美しくしまえる壁面収納、トイレの収納、そして玄関には2つのシューズイン収納も設け、家族でもスッキリ収められます。
整理された空間は、心のゆとりにもつながります。

POINT 3. 暮らしの変化に寄り添う、長く安心できる住まい設計
子どもの成長やライフスタイルの変化に応じて柔軟に対応できることも、これからの住まいに求められる条件のひとつ。
PLAN01にあったように、全居室をリビングからアクセスしやすくしながらも、それぞれの居室には独立性を持たせることで、家族の時間と個の時間のバランスを大切にしました。
サービスルームは子ども部屋やワークスペース、もしくは、趣味部屋や収納としても活用可能な設計に。
さらに、169戸というスケールを持つ大規模マンションならではの安心感もこの物件の魅力です。169戸とたくさんあるため、その分で得られた修繕積立金を使って、今後も修繕工事は随時行われると思われます。これから子育てを迎えるご家族にとっても、子どもが巣立った後も、安心して長く暮らせる住まいです。
・間取りBefore/After(予定)

工事の状況は順次更新していきますので、次回更新をお待ちください!
4.解体/施工工事(10月4日更新)
・解体~枠組工事
既存の壁や設備を解体し、新しい住まいの骨組みをつくる作業がスタートしました。
住まいの姿が見え始めました。

柱や間仕切りの骨組みが組み上がり、住まいの輪郭が見えてきました。
まだ下地の状態ではありますが、リビングや寝室など部屋の広さや形がわかるようになり、「ここに暮らす家族」を想像できるようになってきています。

今回のリノベーションの大きなポイントのひとつである広々としたウォークインクローゼットも、少しずつ形が見えてきました。

オープンキッチンの給排水管の準備の様子。開放感のあるリビング空間が着実に形になってきています!

5.施工完了(11月7日更新)
・室内写真<After>
✓広さとデザインで差がつくキッチン空間に!
今回のリノベーションでは、グレーで統一したアイランドキッチンを採用しました。
落ち着いた印象でありながら汚れが目立ちにくく、特に女性のお客様から好評です。
キッチン幅は2424mmと一般的なマンションでは1950〜2100mmが主流のため、300〜400 mm広いサイズとなっています。リビングの幅が3500mmあったことで実現できた、開放感のある贅沢な仕様です。

大人2人が並んでもゆとりがあり、調理の時間も快適に過ごせます。
リノベーションによって、新築マンションと同等のサイズ感と仕様を実現し、空間の主役となるキッチンに仕上がりました。
✓暮らし方に合わせて使える可変型間取り
今回のリノベーションでは、縦長の2LDKを効率的に家具配置ができる3LDKへ変更しました。
2人暮らしなら2LDK+S(サービスルーム)として、お子様が2人いるご家庭なら3LDKとして使える。ライフステージに合わせて柔軟に使える間取りです。
約5帖の洋室2部屋にはWIC(ウォークインクローゼット)を設け、収納力を確保。
キッチン裏の洋室はあえて収納を設置せず、書斎や子ども部屋、趣味部屋など自由に使える空間に仕上げました。

✓ファミリー層向けの大容量収納を確保
玄関収納は従来の約2倍の収納量を確保し、靴やアウトドア用品などもしっかり収まる設計としました。
トイレには吊戸棚とキャビネット収納を設け、こちらも収納量は約2倍。
実はこのキャビネット、横排水管を隠すための工夫でもあります。
築年数のあるマンションでは床下に配管を通せず横排水となることが多く、そのままだと古さを感じさせてしまいます。壁で隠す方法もありましたが、空間が狭く見えるためキャビネットでスマートにカバーしました。見た目はタンクレストイレのようにすっきりしており、収納力とデザイン性を両立。
全体をシックなカラーでまとめ、スタイリッシュな空間に仕上げました。

✓浴室のわずか10cmの差が生む開放感
浴室は、もともとの1216サイズから、同じスペースに1316サイズを設置。
入口扉の高さを2mから1.8mに抑え、空間の広さを優先しました。わずか10cmの違いですが、入浴時の快適さは大きく変わります。
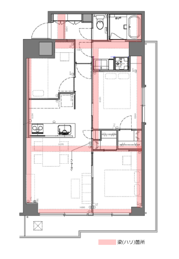
梁(ハリ)との干渉を避けながら施工を行い、施工チームの技術力が光るポイントとなりました。

梁(ハリ)はトイレやWIC(ウォークインクローゼット)など、普段あまり使わない場所に集約し、リビングや主要空間の天井高をしっかり確保しました。

・担当者インタビュー
― 今回の物件の特徴を教えてください。
物件を取得したタイミングで、ちょうどマンション全体の大規模修繕工事が行われていました。
そして、リノベーション工事の完了とほぼ同時期に修繕工事も完了したため、内見開始のタイミングでは外観や共用部、バルコニーまでピカピカの状態でお披露目できました。まさに“タイミングの良さ”に恵まれた物件です。
築年数が経過しているマンションのためオートロックはありませんが、エントランスには広々としたコミュニティスペースがあり、常に人の出入りが多い環境です。
そのため、自然と「人の目」が防犯にもつながり、いわば“人間オートロック”が働いている安心感があります。地域の公民館のような雰囲気があり、子供からお年寄りまでが交流できる場として、ご家族にも好まれる空間だと思います。
― 設計面で特にこだわったポイントは?
キッチンの差別化をはじめ、自由度の高い洋室設計や豊富な収納スペースの確保など、ファミリーが心地よく暮らせる室内環境を実現しています。
築年数が経過していても、工夫次第で快適性とデザイン性は大きく向上します。
配管や梁(ハリ)などの制約を「隠す」のではなく「活かす」ことで、限られた空間の中に新しい価値を生み出せたリノベーションとなりました。
そして、住まいは「今の暮らし」だけでなく、「これからの暮らし方」も見据えてデザインすることが大切です。
今回のリノベーションでは、家族構成やライフステージの変化に柔軟に対応できる間取りを目指しました。
― 内見の反響はいかがですか?
リノベーション完了後の最初の週末に多くの方にご内覧いただき、リノベーション完了からわずか1週間以内に3件ものお申込をいただきました。当社が手がけた物件の中でも、1、2を争うスピード感の物件でした。
ご夫婦お二人の世帯からお子様のいるご家庭まで、多くの方に「ここで暮らしたい」と思っていただけたことは、本当に嬉しいポイントです。
これからも、地域特性や暮らし方に合わせた住まいづくりを追求していきたいと思います。
(担当:リノベーション事業部)
・フォトギャラリー













-150x150.jpg)




