今回は、喧騒を離れた落ち着いた高級住宅街「渋谷区鶯谷町」に位置する築54年中古マンションのリノベーションをレポートしていきます。
目次
1.地域情報
・鶯谷町 名前の由来
渋谷区「鶯谷町」という地名は、かつて三田用水の分水上に架かっていた鶯橋に由来し、のちに小字名「鶯谷」となりました。1932年(昭和7年)に「渋谷区鶯谷町」として町名化されました。周辺に鶯が多く生息した自然豊かな谷地であったことが地名の由来と考えられています。

今昔マップon the webより作成
・地域の歴史
渋谷区の南部は、古くから人が住む谷や台地が入り組んだ土地で、江戸時代には武家屋敷や農村が広がっていました。
明治以降、1885年(明治18年)に渋谷駅が開業し、1887年(明治20年)には恵比寿にビール工場が設立されます。1901年(明治34年)には、貨物輸送や従業員の移動のために恵比寿駅が開業し、駅名は当時のビール銘柄「ヱビスビール」に由来しています。1927年(昭和2年)には東急東横線代官山駅が開通し、交通アクセスが向上。大正から昭和にかけて、政治家や実業家の邸宅が並ぶ上品な住宅街として発展しました。

戦後、恵比寿のビール工場は1988年(昭和63年)に郊外へ移転。その跡地は再開発され、1994年(平成6年)に「恵比寿ガーデンプレイス」として誕生しました。代官山では「代官山ヒルサイドテラス」など、文化性とデザイン性を重視した街づくりが進められました。

現在、恵比寿駅周辺は商業・飲食・オフィスの中心地として発展し、渋谷区南西部の交通・文化・経済の重要拠点となっています。一方、代官山周辺は、セレクトショップやカフェ、ギャラリーが立ち並ぶおしゃれな商業エリアと住宅街が融合した独自の雰囲気を持つ街として知られています。
■「渋谷駅」からJR山手線・湘南新宿ライン・埼京線で「新宿駅」まで約6分
■「渋谷駅」からJR山手線で「品川駅」まで約14分
■「渋谷駅」から東京メトロ半蔵門線で「大手町駅」まで約16分
・これからの渋谷区
渋谷駅周辺の大規模開発はいよいよ最終章を迎えています。
施工計画の見直しを重ねながら、2025年5月に「渋谷スクランブルスクエア第Ⅱ期(中央棟・西棟)」の工事が本格的に始動しました。2030年度をめどに、駅を中心とした多層歩行者ネットワークが概成予定で、翌年には「渋谷スクランブルスクエア第Ⅱ期」の竣工が見込まれています。
自由通路などの整備により、多層的な歩行者ネットワークが誕生し、渋谷駅周辺のアクセス性が飛躍的に向上します。これによって、巡って歩くだけでも楽しい“駅まち一体開発”の実現に大きく近づきます。

JR東日本リリース:https://www.jreast.co.jp/press/2025/20250509_ho01.pdf
※渋谷区の再開発については、【リノベ事例】渋谷区宇田川町/リノベーションプロジェクト にも掲載しています。
https://trust-blog.jp/udagawacho-renovation
・周辺施設
代官山T-SITE
2011年(平成23年)にオープンした「蔦屋書店」を中心とした都会型複合施設です。本を中心に、カフェや雑貨店、ギャラリーが点在し、知的でゆったりと過ごせる空間が広がっています。散策やショッピング、アート体験など、五感で楽しめるライフスタイルスポットとして、多くの人に愛されています。

LOG ROAD DAIKANYAMA(ログロード代官山)
東急東横線の線路跡地を活用して作られたおしゃれな散策スポットです。ウッドデッキが連なる通路沿いは、線路跡地ならではの開放感と自然光あふれる空間で、都会の喧騒を忘れさせます。代官山の洗練された街並みと相まって、写真撮影や散策も楽しめるスポットです。

恵比寿ガーデンプレイス
恵比寿を代表するスポット、歴史あるビール工場跡地を再開発した都会のオアシスのような複合施設です。四季折々の景観やイルミネーションを楽しめる広場に、ショッピングやグルメ、文化体験を一度に楽しめます。都会にいながら自然や文化を感じられる魅力的な場所です。

2.物件情報
・立地
渋谷駅と代官山駅のほぼ中間に位置し、落ち着いた住宅街や緑豊かな環境に囲まれた高級住宅地に建つ物件です。
都会の利便性を享受しつつ、穏やかに暮らせる環境で、周辺には洗練されたショップやカフェ、アートスポットも点在しています。さらに、渋谷、代官山、恵比寿という個性豊かな三つのエリアが身近に揃っており、それぞれの街の魅力を日常で楽しめます。
2024年7月に渋谷駅に新南改札が開設されたことで、アクセスもさらに便利になりました。
活気ある「渋谷」
東京を代表する繁華街で、大型商業施設や飲食店が立ち並び、最新のトレンドやカルチャーに触れることができます。昼夜問わず賑わい、日常の買い物から休日のショッピングやエンタメまで、幅広く楽しめる街です。

穏やかな「代官山」
セレクトショップやカフェ、アートギャラリーが点在し、落ち着いた大人の時間が流れる街です。静かな路地や緑豊かな小道も多く、散策や休日のリラックスタイムにぴったりの場所です。

洗練された「恵比寿」
上質で落ち着いた雰囲気の街で、グルメや隠れ家カフェが豊富に揃います。都会的な便利さと緑や広場のゆとりが共存し、日常生活とリラックスの両方を楽しめるエリアです。

・物件の特徴
落ち着いた高級住宅地に佇む、築54年のヴィンテージマンションです。総戸数111戸の大規模マンションで、シングルからファミリーまで多様な間取りが揃い、さまざまな世代の住人が暮らしています。
全室のバルコニーは南向きで、目の前に「乗泉寺」が広がるため十分な採光が確保できます。

2019年(令和元年)に大規模修繕工事が実施され、外観や共用部も美しく整備されているため、ヴィンテージの風格と安心感を両立した魅力的な住まいです。

宅配ボックスが新たに設置され、日常生活の利便性が大幅に向上しています。駐輪場やバイク置き場も整備されており、共用部分全体が整った環境になっています。これにより、快適な住環境が保たれるだけでなく、管理の行き届いた印象も感じられます。

・物件概要
所在地:東京都渋谷区鶯谷町
交通:JR山手線・湘南新宿ライン・埼京線、東京メトロ半蔵門線・銀座線・副都心線、東急田園都市線・東横線・京王井の頭線「渋谷」駅徒歩7分/東急東横線「代官山」駅徒歩13分
構造:鉄骨鉄筋コンクリート・鉄筋コンクリート造陸屋根12階建
総戸数:111戸
専有面積:35.18㎡(公募)
築年月:1971年4月
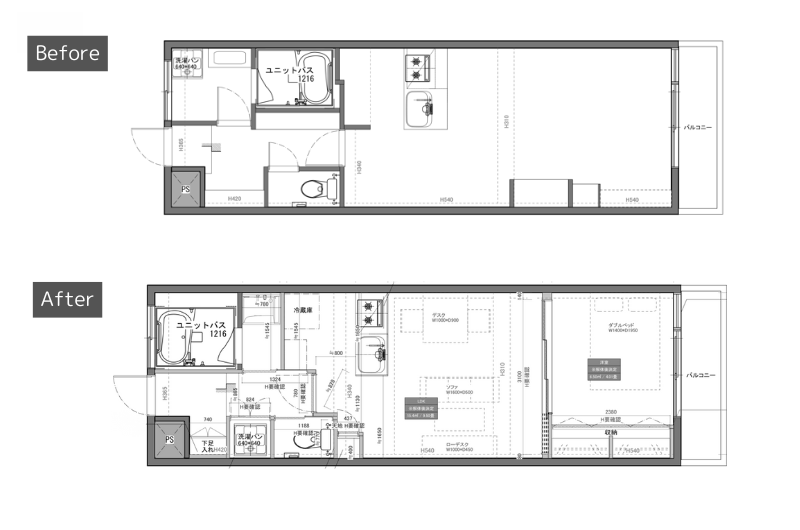
・間取り図< Before>
.png)
・室内写真<Before>



3.プランニング
・コンセプト
「渋谷徒歩圏で叶える、自由で心地よい暮らし」

仕事は渋谷、休日は代官山・恵比寿・中目黒へ。
すべてを徒歩圏内で楽しみながら、アクティブな都心生活を送りたい単身者のためのリノベーションマンションです。
渋谷の喧騒からほどよく距離を置き、落ち着いた環境で眺望を楽しめる立地。コンパクトながらも機能的な住空間が、都会での“自分だけの心地よい時間”を叶えます。
また、この地区では珍しいペットの多頭飼い可能なマンションとして、癒しと自由をプラス。最小限で効率的な空間設計により、日常のストレスを軽減し、シンプルで豊かな暮らしを実現します。

・リノベーション担当者の声と施工工事
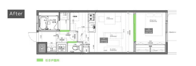
POINT1. 1Rから1Kへ賢く空間を分けて快適に
従来の1Rを1Kにリノベーションすることで、生活スペースと寝室をしっかり分け、単身でも快適に暮らせる空間を実現します。
採光面が限られるため、LDKと洋室を分けるのに引き戸を採用。普段は開けて光をたっぷり取り入れ、来客時には閉めてプライバシーを守ることができます。引き戸は片側の壁に寄せられるので、全開にして開放感を楽しむことも可能です。

POINT2. 玄関からLDKまで、快適さを追求した住まいの工夫
これまでのオープン収納をクローゼットに変更することで、生活感を隠しつつ整理された空間を保てます。
玄関横の貴重な窓は、水回りに明るさと開放感をもたらし、居心地の良い浴室空間を演出します。洗面室は単身用に適した広さに調整し、その分LDKを広く確保することで、日常生活がより快適になります。
さらに、ペット可物件ならではの広めの玄関土間も設けており、ペットグッズや日用品を置ける便利なスペースとして活用可能です。

POINT3.光の工夫でコンパクト空間を快適に演出
おしゃれな空間を演出するためにダウンライトを検討しましたが、天井高が7cm下がってしまい空間のゆとりが感じにくくなります。そこで、壁沿いに間接照明を取り入れることで、空間全体をやわらかく照らし、より広くスタイリッシュに見せる工夫を施しました。これにより、コンパクトながらも開放感があり、ストレスのない心地よい住まいが実現します。

・間取りBefore/After(予定)

4.解体/施工工事(1月27日更新)
・解体
解体工事が完了し、躯体(くたい)の状態を確認したうえで、最終プランの微調整を行いました。
大きな変更はありませんが、実際の構造や納まりを確認したことで、より使い勝手を高めるための細かな調整をいくつか加えました。

エアコンの設置位置は、当初は洋室クローゼット横を予定しておりましたが、解体後の確認で、バルコニー側からLDKにかけて配管を通せるごく限られたスペースがあることが分かりました。
施工会社と相談し、この限られたスペースを活かして配管施工が可能との判断となり、エアコンはLDK側に設置できるよう計画を変更しています。
設置位置をLDK側に変更したことで、LDK全体の空調効率が高まり、より快適に過ごせる空間になる想定です。構造を活かしながら、住み心地の向上につながる判断ができたポイントのひとつです。

※赤枠は当初の設置予定位置と、今回変更した設置位置、下部のラインが配管を通す想定ルートです。
玄関横にある窓は、当初から浴室の窓として活用する予定でしたが、浴室サイズは想定していた1216サイズでは、窓を塞ぐ納まりになることが分かりました。
そこで、採光と換気を優先し、1416サイズへ変更することで窓を活かしたプランへと見直しています。
この規模のマンションで1416サイズの浴室を確保できるケースは多くなく、水回りでありながら自然光が入る浴室となる点は、この物件ならではの付加価値と言えるポイントです。
住まいとしての快適性だけでなく、資産価値の面でもプラスにつながる仕様として採用しました。

※写真は解体後の状態。左側の窓が浴室の窓として活用予定で、上部にわずかに壁がかかる想定箇所です。
バルコニー側には掃き出し窓に加えてFIX窓もあり、室内にしっかりと光を取り込める点が、この住戸の魅力のひとつです。
現在のFIX窓はすりガラス仕様ですが、 眺望と開放感をより活かすため、透明ガラスへ変更することにしました。
ただし、そのままでは給湯器が窓からの視界に入り景色を遮ってしまうため、給湯器の設置位置を下げ、眺望に干渉しないよう配置を調整しています。
採光だけでなく、視線の抜けや開放感まで含めて、住まいの魅力を最大限に引き出すことを意識した変更ポイントです。

※赤枠部分が今回透明ガラスへ変更するFIX窓。外側には給湯器が設置されています。
解体後は、図面上では分からなかった細かな納まりや構造条件が見えてきます。
今回のように、現場を確認しながら柔軟にプランを調整することで、より完成度の高い住まいづくりにつなげていきます。
・枠組み工事~壁立ち上がり(2月16日更新)
枠組み工事が完了し、壁の立ち上がりまで工事が進んでいます。
この工程では、解体後に検討した細かな変更点が、実際の形として見えてくるタイミングです。

エアコンの設置位置変更に伴う配線は、壁の内側にすべて納める計画としています。
室内に配線が露出することなく、空間の見た目や使い勝手に影響が出ないよう、職人さんの技術で丁寧に施工してもらっています。

FIX窓からの眺望を妨げないよう、給湯器の設置位置を下げて配置を調整しています。
また、FIX窓の下に設置されていたエアコンの室外機についても、エアコン本体の配置変更にあわせて反対側へ移設することで、給湯器と干渉しないレイアウトとしました。

さらに変更点として、玄関の土間スペースがあります。
当初は広めの土間を想定していましたが、配管設置の関係で床を下げることができないことが分かりました。
ただし、玄関を上がってすぐの廊下部分の広さは確保できているため、ペットグッズや日用品を置くスペースとして、使い勝手は変わらず確保しています。
ここからは仕上げ工事へと進み、次回はいよいよ完成のご報告となります。
空間がどのように仕上がるのか、ぜひ楽しみにしていただければと思います。












